Регион

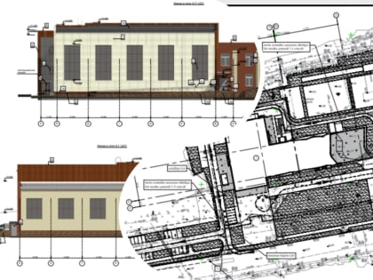
Стрелковая галерея, бассейн и ФОК: в Ярославле потратят пару миллиардов на две новые школы

Стрелковая галерея, бассейн и ФОК: в Ярославле потратят пару миллиардов на две новые школы

«Агентство по строительству» мэрии Ярославля объявило аукционы для поиска подрядчиков.

В Ярославле состоялся мастер-класс по хоккею

В Ярославле состоялся мастер-класс по хоккею

Сегодня на Советской площади прошёл мастер-класс по хоккею для всех желающих.

В Ярославле назвали цену ремонта пострадавшего от взрыва газа дома

В Ярославле назвали цену ремонта пострадавшего от взрыва газа дома

Речь о кровле и квартирах в доме №5 по улице Кузнецова.

Ярославский травматолог советует использовать ледоходы для обуви

Ярославский травматолог советует использовать ледоходы для обуви

И смотреть не только под ноги, но и вверх.

В ярославском ТЦ «Аура» ребенку зажало ногу в эскалаторе

В ярославском ТЦ «Аура» ребенку зажало ногу в эскалаторе

Мальчика спас находившийся рядом мужчина.

В Ярославле состоялась новогодняя пробежка

В Ярославле состоялась новогодняя пробежка

— Данное мероприятие ежегодно объединяет тысячи ярославцев.

В Ярославле пропали трамваи и троллейбусы

В Ярославле пропали трамваи и троллейбусы

Они больше не отображаются в привычных горожанам приложениях.