Стрелковая галерея, бассейн и ФОК: в Ярославле потратят пару миллиардов на две новые школы
«Агентство по строительству» мэрии Ярославля объявило аукционы для поиска подрядчиков.
«Агентство по строительству» мэрии Ярославля объявило аукционы для поиска подрядчиков.
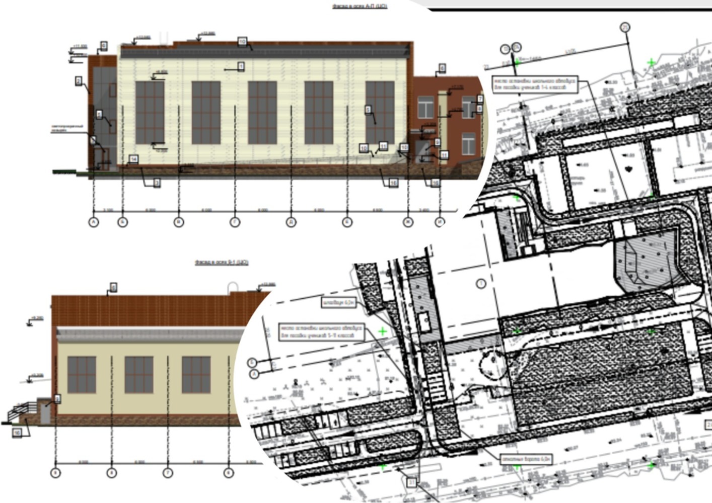
17 января должна быть названа подрядная организация, которая займется строительством школы на Большой Федоровской, 62. Спустя три дня подведут итоги аукциона по поиску подрядчика для школы на Московском проспекте, 121. Пока же на портале госзакупок можно ознакомиться с проектами будущих школ.
Оба учебных заведения рассчитаны на 500 школьников. В них предусмотрено 4 надземных этажа и один подземный. При этом школа на Московском стоит 1,12 миллиарда рублей, а учебное заведение на Большой Федоровской – 739 миллионов. Столь значительная разница связана с тем, что в учебный комплекс на Московском проспекте входит ФОК с бассейном, в подземной части здания будет своя стрелковая галерея. В школе на Московском предусмотрели также свою кухню и зал для хореографии. На Большой Федоровской отдельно сделают уличные площадки для спортивных игр.
Подготовительные работы на месте будущих строек продлятся до конца зимы наступившего года. На строительном участке на Большой Федоровской придется рубить деревья и вывозить грунт на полигон в Скоково. Фундамент на Московском проспекте планируют заливать с 25 февраля. Что касается общих сроков работ, то школу на Большой Федоровской должны построить до 4 июня 2024 года. Работы на Московском проспекте хотят завершить к 6 декабря 2024-го.
Последние новости

Рыбинская городская прокуратура по поручению прокуратуры Ярославской области организовала проверку по материалам средств массовой информации о причинении вреда здоровью подростка
Рыбинская городская прокуратура по поручению прокуратуры Ярославской области организовала проверку по материалам средств массовой информации о причинении вреда здоровью подростка в Рыбинске.

В рамках работы по правовому просвещению заместитель начальника управления по надзору за исполнением федерального законодательства прокуратуры Ярославской области Ольга Гарина про
В рамках работы по правовому просвещению заместитель начальника управления по надзору за исполнением федерального законодательства прокуратуры Ярославской области Ольга Гарина провела лекцию для студентов Ярославского ф
Ярославские росгвардейцы помогли водителю, пострадавшему в ДТП
YarNews.net фото: Управление Росгвардии по Ярославской области Об этом сообщили в пресс-службе регионального управления ведомства.
Герои‑невидимки: 10 мест, где вы сталкиваетесь со стойками СОН ежедневно
Железобетонные стойки СОН окружают нас повсюду — даже если мы не знаем, что это они