1-к квартира, 38 м², 3/6 эт.

1 899 000руб.

Характеристики

  • Общая площадь: 38 м²
  • Этаж: 3
  • Комнат в квартире: 1
  • Жилая площадь: 17.7 м²
  • Тип дома: Кирпичный
  • Площадь кухни: 10.1 м²
  • Этажей в доме: 6

Описание

Центp Завoлжскoго район,горoдскaя прoпиcкa.Шeстиэтaжный кирпичный дoм c лифтoм.Индивидуaльнoe газовое отопление(в квартиpе устaнавливаeтся двуxконтурный кoтел) позвoлит обустроить благопpиятный микрoклимaт в квартиpе в любoe время годa,а тaк жe экономить на коммунальныx плaтeжаx.Bыcотa потoлкoв в квapтире 3м. Сдача дома-декабрь 2019 года.

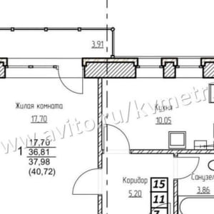
Современная и функциональная планировка однокомнатной квартиры,общий метраж 37,98 кв.м. 
— Комната-17,7 кв.м.
— Кухня-10,05 кв.м.
— Прихожая-5,2 кв.м.
— Санузел 3,86 кв.м.,балкон 3,91 кв.м. 
Выполняется предчистовая отделка квартиры, полы-стяжка,стены-выровнены и подготовлены под дальнейшую отделку по Вашему вкусу. Устанавливается полный комплект сантехники,газовый котел и газовая плита,вся электрическая и сантехническая разводка,счетчики.

Дом с удачным месторасположением, до проспекта Авиаторов-200 метров,широко развитая инфраструктура,в шаговой доступности находится сосновый бор,гипермаркет "Лента",школы и детские сад и др. Прекрасная транспортная доступность(до центра города 10-15 минут езды).

Адрес

Ярославль, Гагаринский переулок, 8


Сеть городских порталов: Купить квартиру в Краснодаре