Территорию рядом с пивзаводом в Ярославле застроят многоэтажками
YarNews.net фото: Мэрия Ярославля Проект комплексного развития территории утвержден постановлением мэра Артема Молчанова.
Проект комплексного развития территории утвержден постановлением мэра Артема Молчанова.
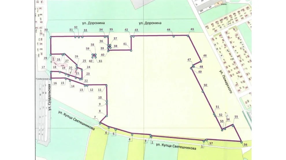
Речь идет о земле, ограниченной улицами Пожарского, Доронина, Суздальской и недавно появившейся улицей Купца Светешникова. Участок находится по соседству с пивзаводом и предприятием «Ярмолпрод». Общая площадь территории составляет 259 981 квадратный метр. КРТ предполагает возможность строительства 8-ми и 18-ти этажных домов, но точное их количество пока неизвестно. Территории понадобится проект планировки и межевания.
«Развиваемая территория расположена в границах территории, в отношении которой актуальная документация по планировке территории отсутствует. При реализации решения о комплексном развитии территории потребуется подготовка документации по планировке территории, в соответствии с которой осуществляется ее комплексное развитие»,— отмечается в постановлении.
На территории под КРТ может таже появится три детских сада и школа на 1280 мест. На реализацию всего проекта отводится 12 лет. В ближайшее время будут организованы торги, которые определят инвестора данного земельного пространства.
Последние новости

Рыбинская городская прокуратура по поручению прокуратуры Ярославской области организовала проверку по материалам средств массовой информации о причинении вреда здоровью подростка
Рыбинская городская прокуратура по поручению прокуратуры Ярославской области организовала проверку по материалам средств массовой информации о причинении вреда здоровью подростка в Рыбинске.

В рамках работы по правовому просвещению заместитель начальника управления по надзору за исполнением федерального законодательства прокуратуры Ярославской области Ольга Гарина про
В рамках работы по правовому просвещению заместитель начальника управления по надзору за исполнением федерального законодательства прокуратуры Ярославской области Ольга Гарина провела лекцию для студентов Ярославского ф
Ярославские росгвардейцы помогли водителю, пострадавшему в ДТП
YarNews.net фото: Управление Росгвардии по Ярославской области Об этом сообщили в пресс-службе регионального управления ведомства.
Потребительский кредит без боли: как не стать жертвой долговой ямы
Как взять кредит с умом и не пожалеть об этом спустя пару месяцев